Step Flanged Thermowell, Thermowell Manufacturer and Exporter
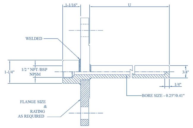
Thermowell Manufacturer Step Flanged Thermowell What are Step Flanged Thermowell? We are Manufacturer and Exporter of Step Flanged Thermowell. Used for Protecting instruments .Installed directly into the piping systems, Step Flanged Thermowell, Thermowell Manufacturer facilitate sensor replacement in high pressure pipelines and eliminate the need to interrupt the process flow or drain the process system…










